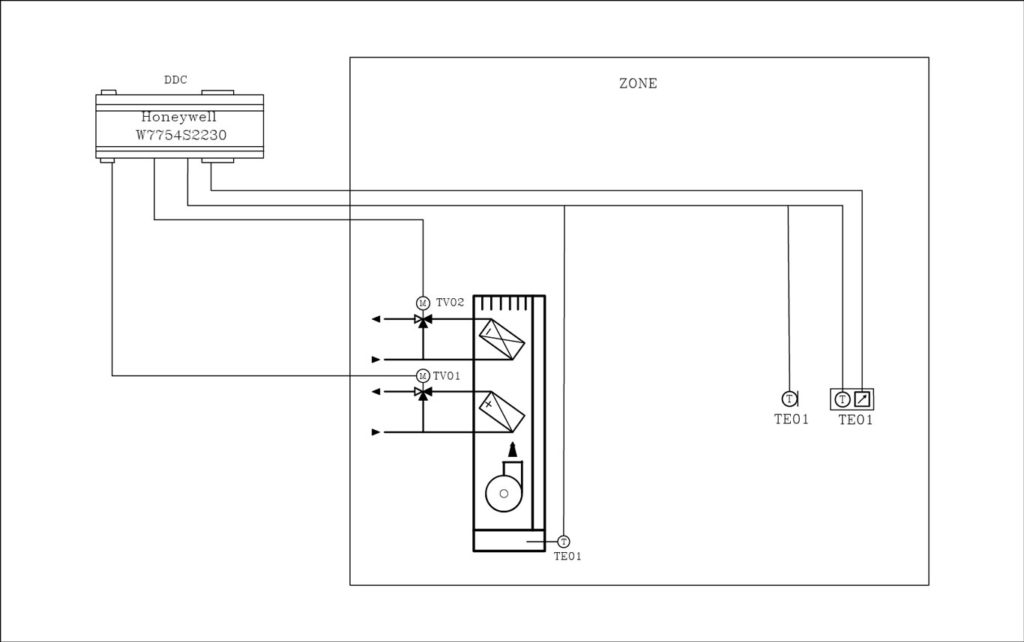
فن کویل در سیستم چهار لوله (محرک شیر از نوع قطع و وصلی 230Vac)

- ارسال فرمان سه دور کند، متوسط، تند به فن و فرمان قطع و وصل به شیرهای کنترل گرم و سرد توسط حلقه کنترلی PI از سنسور اتاقی/ سنسور کانالی هوای برگشت
- قابلیت اتصال به سیستم BMS
| کد | شرح | مدل |
| TE01 | سنسور دمای اتاقی/
سنسور دمای اتاقی با کلید تغییر نقطه تنظیم دما/ سنسور دمای اتاقی با کلید تغییر نقطه تنظیم دما و کلید 5 وضعیتی فن/ سنسور دمای کانالی جهت مسیر برگشت هوای فن کویل |
T7460A1001/
T7460B1009/
T7460D1005/
PF20-65-2M |
| TV01 | محرك ترمو الكتريكي سه وضعیتی جهت شیركنترل گرمايش | MT4-230 / MT8-230 / M5410L |
| شير كنترل سه راهه مخلوط كننده در سیستم جریان ثابت/ شير كنترل دو راهه در سیستم جریان متغیر جهت كويل گرمايش | VSOF3 / VSMF3
VSOF2 / VSMF2 |
|
| TV02 | محرك ترمو الكتريكي سه وضعیتی جهت شیركنترل سرمايش | MT4-230 / MT8-230 / M5410L |
| شير كنترل سه راهه مخلوط كننده در سیستم جریان ثابت/ شير كنترل دو راهه در سیستم جریان متغیر جهت كويل سرمايش | VSOF3 / VSMF3
VSOF2 / VSMF2 |
|
| DDC | كنترلر ميكروپروسسوري ديجيتالي و قابلیت برنامه ریزی و اتصال به سیستم BMS برای کنترل فن کویل، با قابلیت فرمان به شیر کنترل و فن سه سرعته | W7754S2230 |
سنسور دما LonWorks هانیول مدل ماژول اتاقی T7460-T7560
محرک ترموالکتریکی شیر هانیول
محرک الکتریکی شیر هانیول مدل M5410
کنترلر میکروپروسسوری دمای اتاقی هانیول مدل Exel 10 Compact

